ÉVOHOUSE ! Plus qu'une maison, un concept

GLG Maison Tropic Concept vous présente ÉvoHouse. Plus qu'une simple construction, c'est une véritable révolution de l'habitat. Une maison qui s'adapte à chaque étape de votre vie, de votre budget et de vos projets.

Avec ÉVOHOUSE, commencez petit et voyez grand. Que vous soyez une jeune famille en pleine expansion ou un couple en quête de confort, votre maison suit vos rêves. Une surface qui s'agrandit, des pièces qui se multiplient, une terrasse qui s'étend...

ÉVOHOUSE, votre maison, à votre rythme, sans compromis.

Nos modèles évolutifs

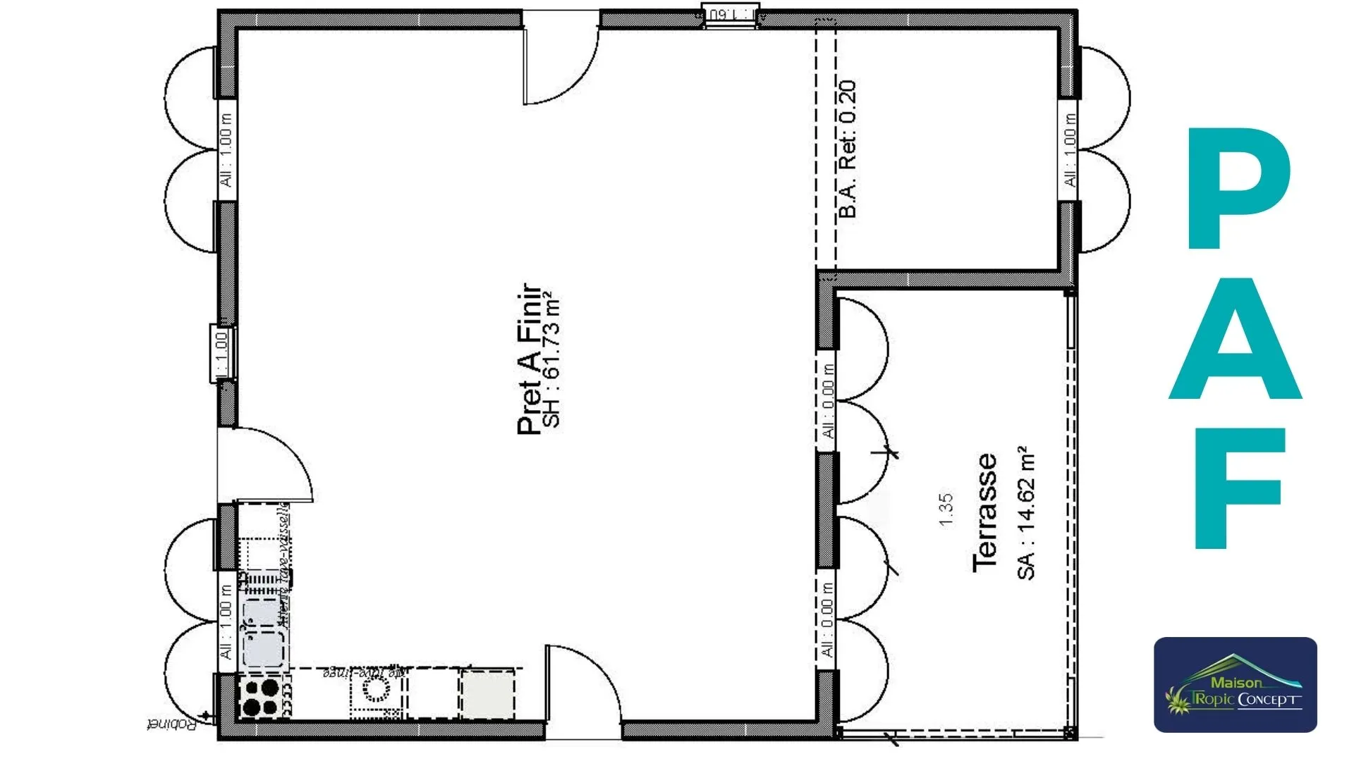
PAF (Prêt à Finir) – Maison hors d'eau hors d'air

À partir de 107 500 € TTC

Surface habitable : 61,73 m²

Construisez à votre rythme ! Nous réalisons les travaux de gros œuvre pour vous laisser le soin des finitions selon vos goûts et votre budget.

📄 Télécharger la plaquette PDF

T4 – Maison familiale

À partir de 152 626 € TTC

Surface habitable : 59,90 m²

Ajoutez des cloisons et transformer votre une pièce unique en quatre pièces fonctionnelles adaptées à la vie de famille.

📄 Télécharger la plaquette PDF

T5 + Studio – Évolution Rentable

À partir de 249 471 € TTC

Surface habitable : 91,72 m²

Ajoutez un studio indépendant, idéal pour un projet de location ou accueillir la famille.

📄 Télécharger la plaquette PDF

La construction de la maison de vos rêves commence ici

Nos experts GLG vous accompagnent à chaque étape de votre projet ÉvoHouse. Obtenez dès maintenant votre devis personnalisé et transformez vos rêves en réalité.

Devis sous 24h
Garantie CCMI
35 ans d'expérience
Plus de 500 maisons construites
Constructeur certifié en Guadeloupe

Pourquoi choisir GLG Maison Tropic Concept?

Depuis plus de 35 ans, GLG Maison Tropic Concept est votre expert en construction de maisons en Guadeloupe. En 2025, nous vous présentons notre modèle ÉVOHOUSE, une maison qui s'adapte à vos besoins.

En tant que constructeur CCMI (Contrat de Construction de Maison Individuelle), nous vous garantissons des prix fixes, des délais respectés et des garanties solides (décennale, responsabilité civile).

Avec GLG, bénéficiez d'un accompagnement personnalisé et d'un seul interlocuteur pour réaliser votre projet de vie.

Nos garanties constructeur

Garantie Décennale

  • ✔️ Protection pendant 10 ans contre les défauts de construction affectant la solidité de la maison (fondations, toiture, murs)
  • ✔️ Couvre les sinistres liés aux malfaçons ou aux vices cachés qui compromettent la sécurité de votre habitation
  • ✔️ Une garantie qui vous assure une tranquillité d'esprit à long terme

Responsabilité Civile

  • ✔️ Couvre les dommages matériels ou corporels causés à des tiers pendant les travaux
  • ✔️ Vous êtes protégé contre les incidents imprévus sur le chantier (accidents, dégâts matériels)
  • ✔️ Une sécurité pour vous et vos voisins tout au long du projet

Contrat CCMI

  • ✔️ Un cadre légal sécurisé pour votre projet immobilier
  • ✔️ Prix fixes dès la signature, sans risque de dépassement
  • ✔️ Délais garantis pour la livraison de votre maison
  • ✔️ Un suivi complet avec un interlocuteur unique pour vous accompagner
  • ✔️ Des garanties supplémentaires (parfait achèvement, garantie de livraison)

ÉvoHouse, la maison qui s'adapte à vos besoins

Présentation du concept en Vidéo

Vidéo de présentation du concept ÉvoHouse par GLG Maison Tropic, montrant les avantages des maisons évolutives en Guadeloupe.

ÉVOHOUSE – Votre maison, vos choix, votre rythme.

Témoignages clients

"Nous tenons à remercier toute l'équipe de GLG. Merci pour votre accueil chaleureux, pour votre professionnalisme et pour votre accompagnement exemplaire tout au long de notre construction. Notre expérience chez vous a été plus que agréable et facile et nous ne manquerons pas de conseiller GLG à tous nos proches pour leurs futurs projets."

Anna et Arnaud, Le Lamentin

"Grâce à la formule évolutive ÉvoHouse, nous avons pu commencer avec un budget maîtrisé et agrandir plus tard. Une vraie solution intelligente qui s'adapte à notre vie !"

David, Baie-Mahault

Questions fréquentes (FAQ)

Une maison évolutive ÉvoHouse est une solution de logement intelligente conçue pour s'adapter à votre mode de vie en Guadeloupe. Elle vous permet de commencer avec une surface habitable adaptée à vos besoins actuels, puis de l'agrandir progressivement, que ce soit pour accueillir une nouvelle chambre, un bureau, une suite parentale, ou même un studio indépendant.

Contrairement aux maisons classiques, une maison évolutive est pensée dès sa conception pour faciliter les extensions futures, avec une structure modulaire et des aménagements prévus pour connecter facilement de nouvelles pièces. Vous bénéficiez d'une flexibilité totale, sans compromettre la qualité de la construction.

Chez GLG Maison Tropic Concept, nous vous proposons des maisons évolutives adaptées au climat tropical de la Guadeloupe, construites avec des matériaux de qualité et bénéficiant de toutes les garanties d'un constructeur CCMI (Contrat de Construction de Maison Individuelle). Que vous souhaitiez agrandir votre maison pour votre famille, ajouter un espace de télétravail ou créer un revenu locatif avec un studio indépendant, nos solutions évolutives vous offrent une liberté totale.

Le CCMI (Contrat de Construction de Maison Individuelle) est un contrat légal qui encadre la construction de maisons individuelles en France et en Guadeloupe, offrant une sécurité renforcée pour les futurs propriétaires. En choisissant GLG Maison Tropic Concept, constructeur CCMI en Guadeloupe, vous bénéficiez de multiples garanties :

🔒 Un prix fixe et définitif :

  • Le coût de votre maison est fixé dès la signature du contrat, sans risque de dépassement
  • Vous bénéficiez d'un budget maîtrisé, adapté à vos besoins et à vos capacités financières
  • Pas de frais cachés, tout est clair dès le début

⏳ Des délais garantis :

  • Un calendrier de construction précis est établi dès la signature
  • Une date de livraison garantie pour vous permettre de planifier votre emménagement
  • Un suivi de chantier transparent pour respecter les délais

🏗️ Des garanties solides et sécurisantes :

  • Garantie décennale : Protection contre les défauts de construction pendant 10 ans
  • Garantie de parfait achèvement : Prise en charge des réparations nécessaires durant la première année
  • Garantie de livraison à prix et délais convenus : Sécurité absolue pour votre projet

👤 Un encadrement légal renforcé :

  • Vous êtes protégé par une réglementation stricte (Contrat CCMI) qui encadre chaque étape de la construction
  • Un seul interlocuteur dédié pour vous accompagner de la conception à la livraison
  • Des conseils personnalisés pour choisir les matériaux, les finitions et optimiser votre budget

📃 Une transparence totale :

  • Des plans de maison détaillés, personnalisables selon vos besoins
  • Des matériaux et des prestations clairement définis dès le début
  • Aucune ambiguïté sur les coûts ou les prestations, tout est transparent

GLG Maison Tropic Concept, en tant que constructeur CCMI, vous garantit une construction sereine, sécurisée et parfaitement encadrée, adaptée à vos besoins et à votre budget. Que vous rêviez d'une maison évolutive ou d'une villa sur mesure, nous transformons vos projets en réalité.

Demandez votre devis personnalisé

Votre nom de famille
Veuillez saisir votre nom.
Votre prénom
Veuillez saisir votre prénom.
Votre adresse email pour vous recontacter
Veuillez saisir une adresse email valide.
Votre numéro de téléphone
Veuillez saisir un numéro de téléphone valide.
Sélectionnez le type de maison qui vous intéresse
Veuillez choisir un modèle.
Votre budget approximatif (optionnel)
Décrivez votre projet en détail pour un devis plus précis
Veuillez décrire votre projet.
En soumettant ce formulaire, vous acceptez d'être recontacté par GLG Maison Tropic.